Dream Modern
Emerson VE Floor Plan
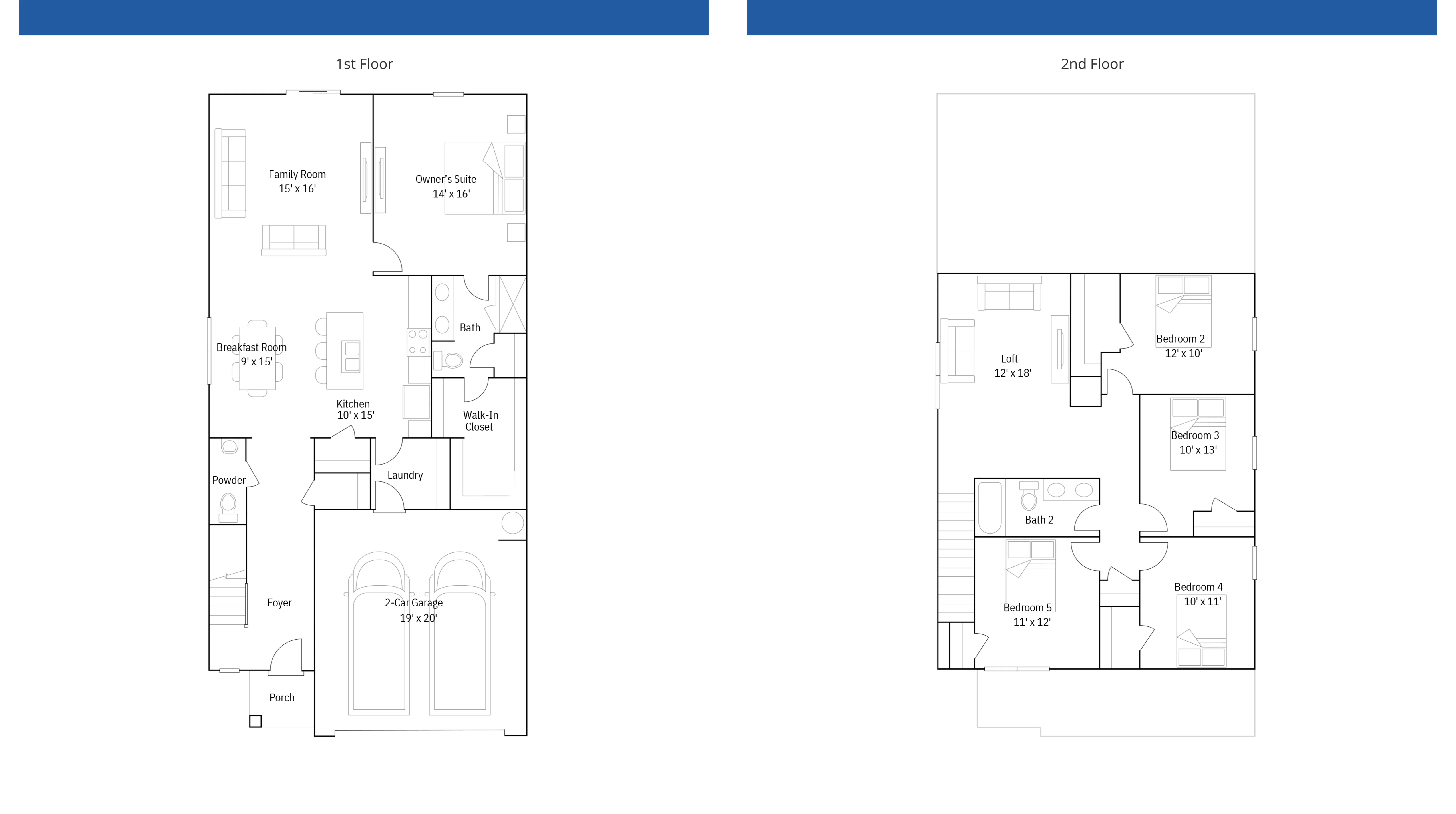
One of Baker's Creek's most popular floor plans, the Emerson VE offers 2,307 square feet with 5 bedrooms and 2.5 bathrooms. This versatile two-story design features a spacious first-floor living area perfect for entertaining, plus five generous bedrooms upstairs. Ideal for multi-generational living or families who need dedicated spaces for work and play.
5
Bedrooms
2.5
Bathrooms
2,307
Sq Ft
2-story
Stories
From $393,999
Emerson VE Key Features
5 Bedrooms, 2.5 Bathrooms
2,307 Sq Ft of Living Space
Expansive Great Room
Gourmet Kitchen with Breakfast Nook
Owner's Suite with Luxury Bath
4 Additional Bedrooms Upstairs
Dedicated Laundry Room
2-Car Garage
Everything's Included® Features
Exterior Style Options
Choose from 3 distinct exterior styles featuring modern farmhouse architecture
Exterior JExterior KExterior L
All exterior styles feature board-and-batten siding, craftsman details, and covered front porches
More from Dream Modern



Ready to Tour the Emerson VE?
Schedule a private tour to see this floor plan in person and explore customization options with our New Home Specialists.
